Mehr anzeigen zum Thema Ausstattung Beschreibung
Ausstattung Beschreibung
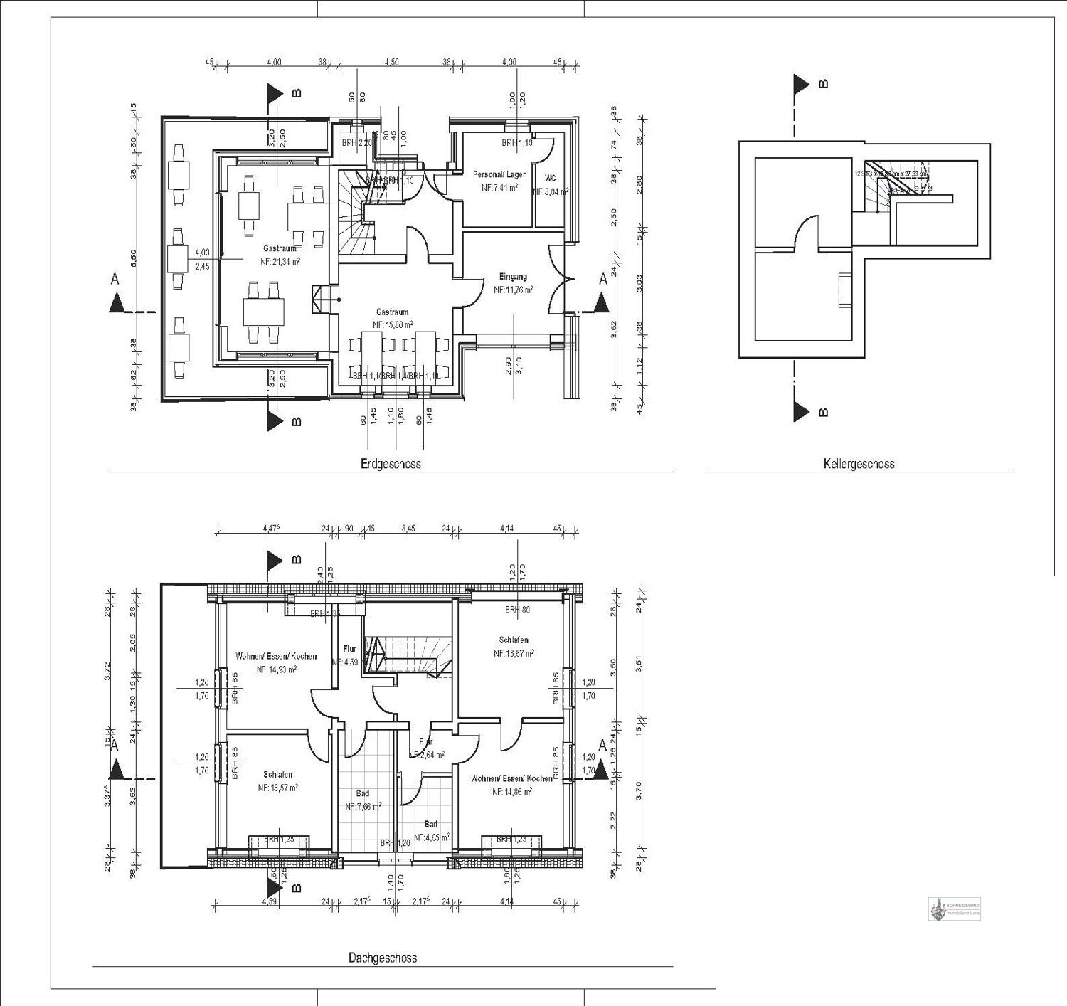
EG ca. 70 m² für einen Gewerbebetrieb
OG Wohnung 1 mit ca. 36 m² Wohnfläche
OG Wohnung 2 mit ca. 42 m² Wohnfläche
Hier kann allerdings dieser Bereich auch als Erweiterung für die Gewerbefläche umgewandelt werden.
Sie sehen; hier ist der Bauherr sehr flexibel und Sie können Ihre Vorstellungen noch mit einbringen. Alles was möglich ist, kann zum Spätsommer fertig werden. Vielleicht ist bis dahin auch schon die Gleisanlage in Betrieb. Dann haben Sie die Reisenden direkt vor Ihrem Geschäft.
Rufen Sie uns an und wir vereinbaren einen Gesprächstermin mit dem Bauherrn. So können Sie in vertraulicher Atmosphäre Ihre Vorstellungen austauschen. Tel: 0421 - 80 91 62 00.
P.S. Gegenüber ist ein Altenpflegeheim.
Vielleicht ist das für Ihr Gewerbe durchaus von Interesse und Sie finden dort einen zu Ihnen passenden Absatzmarkt.
OG Wohnung 1 mit ca. 36 m² Wohnfläche
OG Wohnung 2 mit ca. 42 m² Wohnfläche
Hier kann allerdings dieser Bereich auch als Erweiterung für die Gewerbefläche umgewandelt werden.
Sie sehen; hier ist der Bauherr sehr flexibel und Sie können Ihre Vorstellungen noch mit einbringen. Alles was möglich ist, kann zum Spätsommer fertig werden. Vielleicht ist bis dahin auch schon die Gleisanlage in Betrieb. Dann haben Sie die Reisenden direkt vor Ihrem Geschäft.
Rufen Sie uns an und wir vereinbaren einen Gesprächstermin mit dem Bauherrn. So können Sie in vertraulicher Atmosphäre Ihre Vorstellungen austauschen. Tel: 0421 - 80 91 62 00.
P.S. Gegenüber ist ein Altenpflegeheim.
Vielleicht ist das für Ihr Gewerbe durchaus von Interesse und Sie finden dort einen zu Ihnen passenden Absatzmarkt.
Mehr anzeigen zum Thema Beschreibung
Beschreibung
Achtung Vor(aus)- denker!!!
Hier entsteht für die neue Bahnlinie von Bremen nach Weyhe ein neues Bahnhofsgebäude.
Der Bahnhof in Erichshof/ Brinkum wird im Spätsommer 2026 fertig!
Auf ca. 60 - 70 m² können Sie im Erdgeschoß Ihr Gewerbe einrichten.
Vom Autoverleih bis hin zum Friseur ist Vieles denkbar.
Eine Bäckerei mit der Verpflegung der Reisenden ist selbstverständlich sehr gern gesehen.
Aber auch sonstige gewerbliche Unternehmer sind hier willkommen. Das könnten sein: Fußpflege, Versicherungen, Bonbonladen, Handyverkauf, Beratungsstellen, Blumengeschäft ... Alles möglich!
Es ist geplant, im EG die o. a. Unternehmen zu etablieren. Im OG könnten 1 - 2 kleine Wohnungen mit ca. 42 und 36 m² Wohnfläche entstehen. Hier ist auch die Erweiterung der Gewerbefläche planbar.
Im Keller sind weitere 30 m² Lagerfläche verfügbar.
Sie haben derzeit noch die Möglichkeit, auf die räumliche Gestaltung Einfluss zu nehmen.
Dazu können Sie die Wände verschieben, die Farbgestaltung mit aussuchen und sogar den Fußbodenbelag auswählen. Dazu müssten Sie sich allerdings relativ schnell bei uns melden, da sonst die Bestellungen des Baumaterials abgeschlossen sind.
Die Kaltmiete ist erst einmal mit ca. 1.500 €/ mtl. zzgl. 19% MwSt. angesetzt.
Dabei hat der Bauherr sehr hochwertiges Material kalkuliert. Hier sind natürlich weitere Verhandlungsspielräume gegeben.
Hier entsteht für die neue Bahnlinie von Bremen nach Weyhe ein neues Bahnhofsgebäude.
Der Bahnhof in Erichshof/ Brinkum wird im Spätsommer 2026 fertig!
Auf ca. 60 - 70 m² können Sie im Erdgeschoß Ihr Gewerbe einrichten.
Vom Autoverleih bis hin zum Friseur ist Vieles denkbar.
Eine Bäckerei mit der Verpflegung der Reisenden ist selbstverständlich sehr gern gesehen.
Aber auch sonstige gewerbliche Unternehmer sind hier willkommen. Das könnten sein: Fußpflege, Versicherungen, Bonbonladen, Handyverkauf, Beratungsstellen, Blumengeschäft ... Alles möglich!
Es ist geplant, im EG die o. a. Unternehmen zu etablieren. Im OG könnten 1 - 2 kleine Wohnungen mit ca. 42 und 36 m² Wohnfläche entstehen. Hier ist auch die Erweiterung der Gewerbefläche planbar.
Im Keller sind weitere 30 m² Lagerfläche verfügbar.
Sie haben derzeit noch die Möglichkeit, auf die räumliche Gestaltung Einfluss zu nehmen.
Dazu können Sie die Wände verschieben, die Farbgestaltung mit aussuchen und sogar den Fußbodenbelag auswählen. Dazu müssten Sie sich allerdings relativ schnell bei uns melden, da sonst die Bestellungen des Baumaterials abgeschlossen sind.
Die Kaltmiete ist erst einmal mit ca. 1.500 €/ mtl. zzgl. 19% MwSt. angesetzt.
Dabei hat der Bauherr sehr hochwertiges Material kalkuliert. Hier sind natürlich weitere Verhandlungsspielräume gegeben.
Mehr anzeigen zum Thema Lage
Lage
Das neue Bahnhofsgebäude in der Bremer Straße 2 in Weyhe OT Erichshof/ Brinkum.
Mehr anzeigen zum Thema Lage
Energieausweis
- Nutzungsart
- Gewerbe
- Warmwasser enthalten
- Nein
Ihr Ansprechpartner
Herr Dirk Schneidewind
Schneidewind Immobilienträume
- Tel.:
- 0421 - 80 91 62 00
Syker Str. 12
28844 Weyhe