Mehr anzeigen zum Thema Ausstattung Beschreibung
Ausstattung Beschreibung
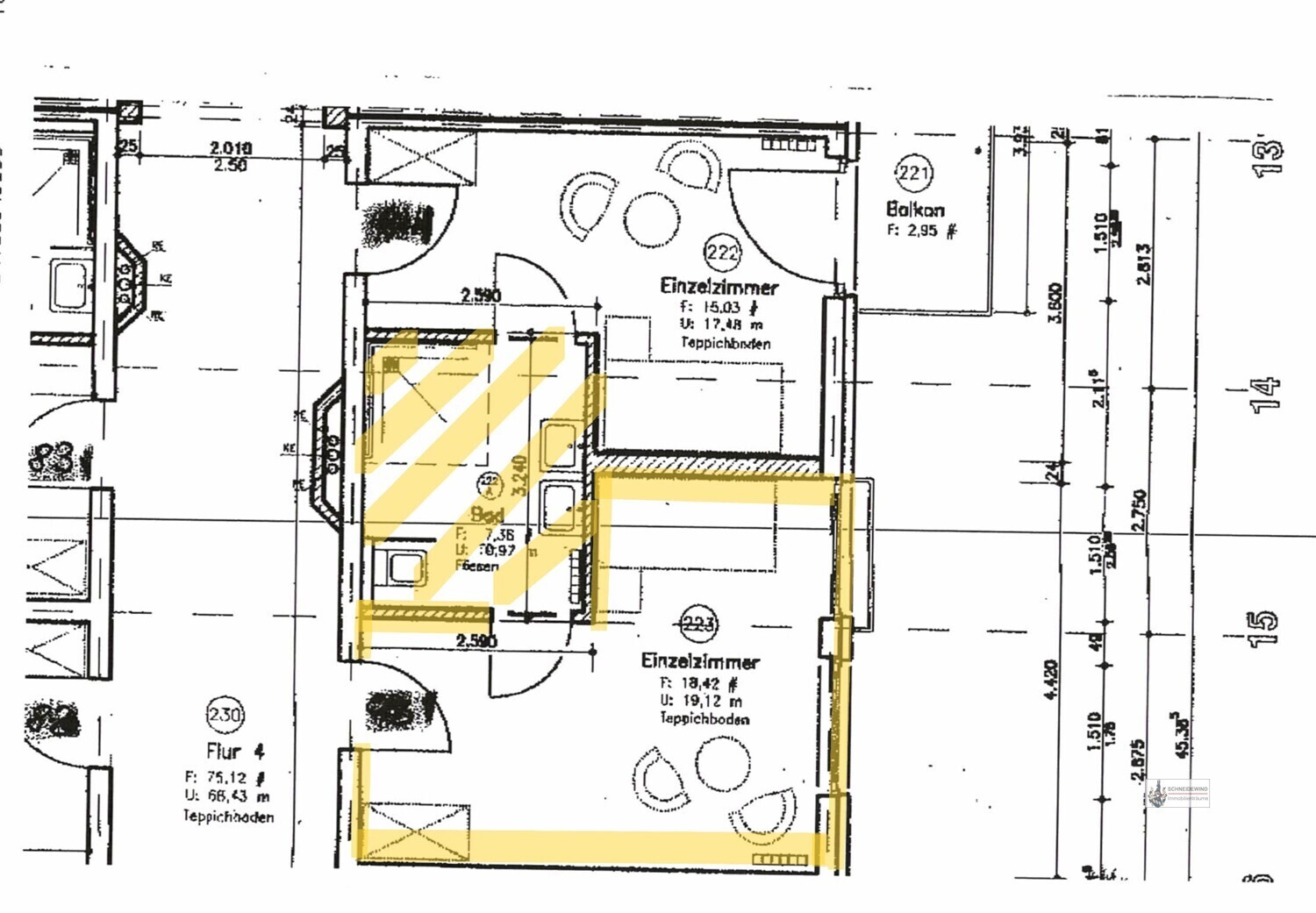
- Etagenwohnung mit einer Wohnfläche von 52m²
- Kapitalanlage geeignet
- Balkon vorhanden
- Kellerraum inklusive
- Badezimmer mit Dusche ausgestattet, Doppelnutzung
- Wohnbereich mit gemütlicher Einrichtung
- Gute Anbindung an örtliche Infrastruktur
- Zugang zur Verwaltung und Haupteingang leicht erreichbar
- Kapitalanlage geeignet
- Balkon vorhanden
- Kellerraum inklusive
- Badezimmer mit Dusche ausgestattet, Doppelnutzung
- Wohnbereich mit gemütlicher Einrichtung
- Gute Anbindung an örtliche Infrastruktur
- Zugang zur Verwaltung und Haupteingang leicht erreichbar
Mehr anzeigen zum Thema Beschreibung
Beschreibung
Diese charmante Etagenwohnung bietet auf 52 m² eine ideale Gelegenheit für Kapitalanleger. Die Wohnung besticht durch einen gut geschnittenen Wohnbereich, der sich perfekt für individuelle Gestaltungsmöglichkeiten eignet. Der Balkon erweitert den Wohnraum nach draußen und bietet einen angenehmen Rückzugsort.
Das Badezimmer ist funktional gestaltet und verfügt über alle notwendigen Annehmlichkeiten. Ein Kellerraum gehört ebenfalls zur Wohnung und bietet zusätzlichen Stauraum.
Die Lage in Schiffdorf ist besonders attraktiv durch die Nähe zu lokalen Einrichtungen und die gute Anbindung an die umliegenden Städte. Diese Immobilie bietet eine hervorragende Möglichkeit, in eine zukunftssichere Kapitalanlage zu investieren.
Das Badezimmer ist funktional gestaltet und verfügt über alle notwendigen Annehmlichkeiten. Ein Kellerraum gehört ebenfalls zur Wohnung und bietet zusätzlichen Stauraum.
Die Lage in Schiffdorf ist besonders attraktiv durch die Nähe zu lokalen Einrichtungen und die gute Anbindung an die umliegenden Städte. Diese Immobilie bietet eine hervorragende Möglichkeit, in eine zukunftssichere Kapitalanlage zu investieren.
Mehr anzeigen zum Thema Lage
Lage
1. **Geographische Lage**
- Die Immobilie liegt im charmanten Stadtteil Schiffdorf, eingebettet in eine ruhige und familienfreundliche Umgebung.
2. **Infrastruktur**
- **Verkehrsanbindung:** Die Anbindung an den öffentlichen Nahverkehr ist gut, mit mehreren Bushaltestellen in der Nähe, darunter Moorhöfen und Brameler Straße. Die Autobahn ist ebenfalls gut erreichbar, was eine schnelle Verbindung zu umliegenden Städten ermöglicht. Parkmöglichkeiten sind ausreichend vorhanden.
- **Einrichtungen des täglichen Bedarfs:** In der Umgebung gibt es diverse Supermärkte und Bäckereien, die für den kleinen zusätzlichen Snack sorgen könnten. Eine Apotheke ist ebenfalls in der Nähe zu finden.
- **Gesundheitsversorgung:** Das nächste Krankenhaus ist in einer angemessenen Entfernung erreichbar.
3. **Freizeit und Erholung**
- **Grünflächen und Parks:** Die Umgebung bietet zahlreiche Grünflächen und Parks, die zu Spaziergängen und Erholung einladen.
- **Restaurants und Cafés:** Eine Auswahl an Restaurants und Cafés bietet kulinarische Vielfalt.
hier können Sie auch einmal mit Ihren Angehörigen essen gehen.
4. **Soziale Infrastruktur**
- **Nachbarschaft:** Die Nachbarschaft zeichnet sich durch eine hohe Eigentümerquote und eine demographisch ausgewogene Struktur aus. Die Umgebung ist ruhig und sicher.
- **Dienstleistungen:** Dienstleistungen wie Post, Banken und Friseure sind in der Nähe vorhanden und gut erreichbar.
5. **Umwelt und Klima**
- Die Luftqualität ist gut, und es gibt keine nennenswerte Lärmbelästigung. Das Klima ist gemäßigt und angenehm.
6. **Sicherheitsaspekte**
- Die Kriminalitätsrate ist niedrig, und die Polizeipräsenz sorgt für ein sicheres Wohnumfeld. Notfallversorgung ist schnell erreichbar.
- Die Immobilie liegt im charmanten Stadtteil Schiffdorf, eingebettet in eine ruhige und familienfreundliche Umgebung.
2. **Infrastruktur**
- **Verkehrsanbindung:** Die Anbindung an den öffentlichen Nahverkehr ist gut, mit mehreren Bushaltestellen in der Nähe, darunter Moorhöfen und Brameler Straße. Die Autobahn ist ebenfalls gut erreichbar, was eine schnelle Verbindung zu umliegenden Städten ermöglicht. Parkmöglichkeiten sind ausreichend vorhanden.
- **Einrichtungen des täglichen Bedarfs:** In der Umgebung gibt es diverse Supermärkte und Bäckereien, die für den kleinen zusätzlichen Snack sorgen könnten. Eine Apotheke ist ebenfalls in der Nähe zu finden.
- **Gesundheitsversorgung:** Das nächste Krankenhaus ist in einer angemessenen Entfernung erreichbar.
3. **Freizeit und Erholung**
- **Grünflächen und Parks:** Die Umgebung bietet zahlreiche Grünflächen und Parks, die zu Spaziergängen und Erholung einladen.
- **Restaurants und Cafés:** Eine Auswahl an Restaurants und Cafés bietet kulinarische Vielfalt.
hier können Sie auch einmal mit Ihren Angehörigen essen gehen.
4. **Soziale Infrastruktur**
- **Nachbarschaft:** Die Nachbarschaft zeichnet sich durch eine hohe Eigentümerquote und eine demographisch ausgewogene Struktur aus. Die Umgebung ist ruhig und sicher.
- **Dienstleistungen:** Dienstleistungen wie Post, Banken und Friseure sind in der Nähe vorhanden und gut erreichbar.
5. **Umwelt und Klima**
- Die Luftqualität ist gut, und es gibt keine nennenswerte Lärmbelästigung. Das Klima ist gemäßigt und angenehm.
6. **Sicherheitsaspekte**
- Die Kriminalitätsrate ist niedrig, und die Polizeipräsenz sorgt für ein sicheres Wohnumfeld. Notfallversorgung ist schnell erreichbar.
Mehr anzeigen zum Thema Sonstige Angaben
Sonstige Angaben
Die Hausverwaltung befindet sich in Hildesheim.
Die übergeordnete Verwaltung agiert von Hannover aus.
Die Senioren Wohnanlage umfasst insgesamt 69 Eigentumswohnungen, so wie eine Pflegestation mit ca. 40 Senioren Pflegeplätzen.
Sonderfunktionsflächen (Funktionsräume): Cafeteria, Restaurant, Kiosk, Gymnastikräume, Pflegebäder, Großküche, Friseur, Bibliothek befinden sich im mittleren Teil des EG auf ca. 1090m2.
Ihr Miteigentumsanteil (MEA): 80,44 / 10.000
Wohnfläche: Zimmer Nr. 223 : 16,00m2
anteiliges Bad: 4,23m2
anteilige Gemeinschaftsfläche: 47,99m2
Gesamtfläche: 68,22m2
monatliche Kaltmiete : 525,43€
Die übergeordnete Verwaltung agiert von Hannover aus.
Die Senioren Wohnanlage umfasst insgesamt 69 Eigentumswohnungen, so wie eine Pflegestation mit ca. 40 Senioren Pflegeplätzen.
Sonderfunktionsflächen (Funktionsräume): Cafeteria, Restaurant, Kiosk, Gymnastikräume, Pflegebäder, Großküche, Friseur, Bibliothek befinden sich im mittleren Teil des EG auf ca. 1090m2.
Ihr Miteigentumsanteil (MEA): 80,44 / 10.000
Wohnfläche: Zimmer Nr. 223 : 16,00m2
anteiliges Bad: 4,23m2
anteilige Gemeinschaftsfläche: 47,99m2
Gesamtfläche: 68,22m2
monatliche Kaltmiete : 525,43€
Mehr anzeigen zum Thema Sonstige Angaben
Energieausweis
- Nutzungsart
- Anlage
- Warmwasser enthalten
- Ja
Ihr Ansprechpartner
Herr Dirk Schneidewind
Schneidewind Immobilienträume
- Tel.:
- 0421 - 80 91 62 00
Syker Str. 12
28844 Weyhe